秦野市南矢名 1,300万円 中古住宅
![]() |
物件詳細
所在地 | 秦野市南矢名1182-3 |
最寄駅 アクセス |
小田急線 東海大学前駅より バス乗車4分 宮田バス停より 徒歩2分 |
---|---|---|---|
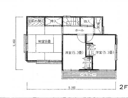
価格 | 1,300万円 | 間取り | 3LDK |
土地面積(㎡) | 152.84㎡ | 建物面積(㎡) |
91.08㎡ ・1階 47.20㎡ ・2階 43.88㎡ |
構造/階数 | 木造2階建て |
築年月 |
1983年6月築 |
建ぺい率(%) | 50% | 容積率(%) | 100% |
用途地域 |
第一種低層住居専用地域 |
都市計画 |
市街化区域 |
地目 | 宅地 | 地勢 | 平坦 |
現況 | 空き家 |
|
|
道路種別 | 公道 | 道路幅員(m) | 約6m |
接道面(m) | 2.00m | 接道方位 | 北東 |
接道備考 | |||
上水道 | 公営 | 下水道 | 本下水 |
ガス | |||
建築条件 | 国土法届出 | ||
幼稚園・保育園 | |||
小学校 | 大根小学校 | 中学校 | 大根中学校 |
備考 | |||
取引形態 | 専任 | 引渡し日 | 相談 |
その他 |
駐車場1台分(小型のみ)
|
物件一覧に戻る
この物件の周辺地図

